Warszawa, Praga-Południe, Mazowieckie,
Mieszkanie na sprzedaż
Opis
KOMPATYBILNE | M2 | OGRÓDEK | TARAS
Największa wieloetapowa inwestycja mieszkaniowa na Grochowie, niecałe 500 m od planowanej stacji metra Mińska Na centralnym dziedzińcu zaplanowano alejki spacerowe, tężnię solankową, siłownię plenerową i plac zabaw, a na parterach budynków – lokale usługowe, kawiarnie i restauracje – tworząc nową, zieloną przestrzeń miejską dostępną zarówno dla mieszkańców, jak i okolicznych społeczności
- Świetna lokalizacja na Grochowie
- Kameralna, niska zabudowa i nowoczesna architektura
- Ekologiczne rozwiązania
- Idealne dla rodzin i inwestorów
- Garaże podziemne
*** 0% PROWIZJI OD KUPUJĄCEGO ***
*** Brak podatku 2% PCC ***
Na sprzedaż 2 pokojowe mieszkanie o powierzchni 41,58 m², w prestiżowej inwestycji na Mokotowie. Mieszkanie zaprojektowane z myślą o maksymalnym komforcie i funkcjonalności – idealne dla singla, pary lub jako inwestycja pod wynajem.
Mieszkanie składa się z:
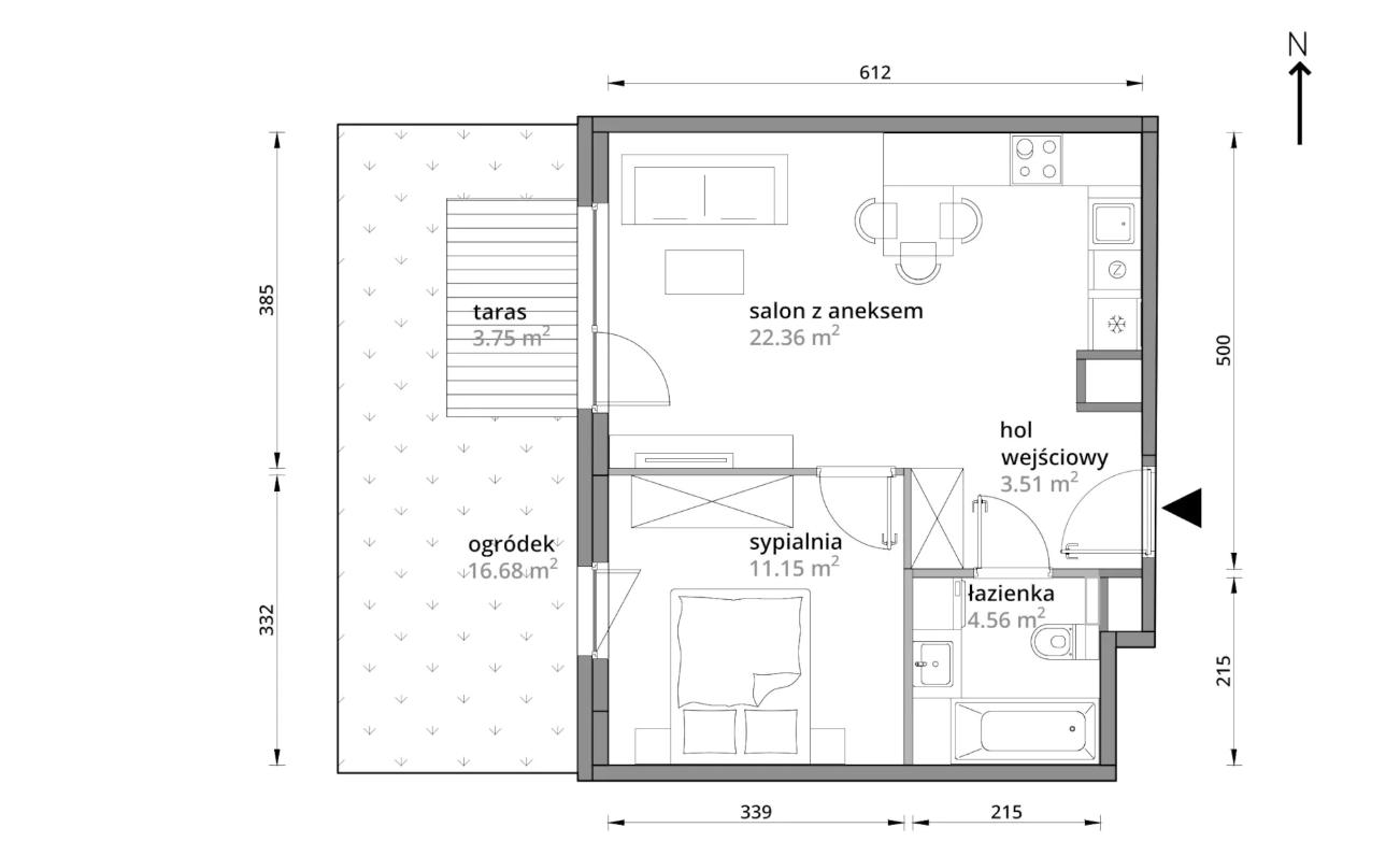
- pokoju dziennego z aneksem kuchennym - 22,36 m2
- sypialni - 11,15 m2
- łazienki - 4,56 m2
- hallu - 3,51 m2
+ OGRÓDEK - 16,68 m2
+ TARAS - 3,75 m2
Główne atuty mieszkania i inwestycji:
- Świetna lokalizacja na Grochowie – blisko tramwajów, autobusów i przyszłego metra
- Kameralna, niska zabudowa i nowoczesna architektura
- Ekologiczne rozwiązania – certyfikat BREEAM, dużo zieleni
- Mieszkania z balkonami, tarasami lub ogródkami
- Usługi, kawiarnie, place zabaw i tężnia solankowa na terenie osiedla
- Garaże podziemne, boksy rowerowe, brak ruchu kołowego na dziedzińcach
Inwestycja idealnie skomunikowana – zaledwie ok. 500 m od przyszłej stacji metra Mińska, a także w zasięgu tramwajów, autobusów i stacji PKP Wschodnia. Dojazd samochodem do centrum zajmuje kilkanaście minut
- Zastosowanie energooszczędnych materiałów i technologii; certyfikacja BREEAM we wszystkich realizowanych etapach
- Osiedle z ograniczonym ruchem kołowym, podziemnym garażem, komórkami lokatorskimi oraz boksami rowerowymi
- Przemyślane architektonicznie przestrzenie wspólne: centralny dziedziniec, alejki spacerowe, drewniane pomosty, strefy wodne i ledowe oświetlenie
Okolica bogata w tereny rekreacyjne:
Park Polińskiego, Park Obwodu Praga AK, Park Skaryszewski oraz malownicze tereny wokół Jeziora Kamionkowskiego – wszystko w zasięgu 1–2 km. Ponadto liczne sklepy, przedszkola, żłobki, szkoły i punkty usługowe w bezpośrednim sąsiedztwie.
Inwestycja łączy nowoczesność i ekologię z wygodą miejskiego życia: projekty przyjazne środowisku, bogate w udogodnienia rekreacyjne i usługowe, w świetnej lokalizacji. To idealne miejsce dla rodzin, inwestorów oraz osób szukających komfortu, funkcjonalności i wartościowej miejskiej przestrzeni.
------------
Zapraszam do kontaktu telefonicznego lub mailowego, z chęcią odpowiem na pytania oraz zaprezentuję inne dostępne mieszkanie w tej inwestycji.
Anna Holweg
Agent Nieruchomości
+48 534 935 159
a.holweg@freedom.pl
------------
Finansując zakup nieruchomości kredytem warto wcześniej sprawdzić swoją zdolność kredytową. Nasi doradcy finansowi pomogą w organizacji wszystkich formalności niezbędnych do uzyskania kredytu oraz przygotują dla Państwa ofertę na bardzo preferencyjnych warunkach.
------------
Powyższa oferta ma charakter informacyjny i nie jest ofertą w rozumieniu art. 66 par. 1 Kodeksu Cywilnego. Opis nieruchomości został sporządzony na podstawie informacji uzyskanych od właściciela i może być aktualizowany. Skontaktuj się z nami w celu zapoznania się ze szczegółami oferty.
Właścicielem ogłoszenia wraz z jego elementami jest Freedom Nieruchomości Sp. z o.o. lub podmioty współpracujące. Wszelkie prawa zastrzeżone. Kopiowanie, rozpowszechnianie oraz korzystanie z niniejszych materiałów w jakikolwiek inny sposób wykraczający poza dozwolony użytek określony przepisami ustawy z 4 lutego 1994 r. o prawie autorskim i prawach pokrewnych (Dz. U. 1994, nr 24 poz. 83 z późn. zm.) bez pisemnej zgody Freedom Nieruchomości Sp. z o.o. lub podmiotów współpracujących jest zabronione i może stanowić podstawę odpowiedzialności cywilnej oraz karnej. Ponadto niniejsze materiały stanowią tajemnicę przedsiębiorstwa Freedom Nieruchomości Sp. z o.o. lub podmiotów współpracujących w rozumieniu ustawy z dnia 16 kwietnia 1993 r. o zwalczaniu nieuczciwej konkurencji (Dz. U. z 2003 r., Nr 153, poz. 1503 z późn. zm.).
Pytania kupujących
FAQ dotyczące mieszkania na Grochowie, Warszawa
1. Jakie są szczegóły dotyczące układu pomieszczeń w tym mieszkaniu?
Mieszkanie składa się z pokoju dziennego z aneksem kuchennym o powierzchni 22,36 m², sypialni o powierzchni 11,15 m², łazienki o powierzchni 4,56 m² oraz hallu o powierzchni 3,51 m². Dodatkowo do mieszkania przynależy ogródek o powierzchni 16,68 m² oraz taras o powierzchni 3,75 m².
2. Jakie udogodnienia są dostępne w tej inwestycji?
Inwestycja oferuje wiele udogodnień, takich jak garaże podziemne, boksy rowerowe, brak ruchu kołowego na dziedzińcach, a także dostęp do usług, kawiarni, placów zabaw i tężni solankowej na terenie osiedla. Budynek jest wyposażony w windę, a mieszkanie znajduje się na parterze.
3. Co znajduje się w okolicy mieszkania na Grochowie?
W okolicy znajdziesz liczne tereny rekreacyjne, takie jak Park Polińskiego, Park Obwodu Praga AK, Park Skaryszewski oraz tereny wokół Jeziora Kamionkowskiego. W pobliżu są także sklepy, przedszkola, szkoły, przychodnie, restauracje i inne punkty usługowe.
4. Jakie są możliwości komunikacyjne w pobliżu tej lokalizacji?
Mieszkanie jest świetnie skomunikowane, zaledwie około 500 metrów od przyszłej stacji metra Mińska. W pobliżu znajdują się również przystanki tramwajowe, autobusowe oraz stacja PKP Wschodnia, co zapewnia łatwy dostęp do różnych części Warszawy.
5. Jak mogę umówić się na oglądanie mieszkania?
Chętnie pokażemy mieszkanie – wystarczy zadzwonić lub napisać do naszego agenta, Anny Holweg, pod numerem telefonu +48 534 935 159 lub adresem e-mail a.holweg@freedom.pl. Zachęcamy do kontaktu, aby uzyskać więcej szczegółów i umówić się na wizytę.
Lokalizacja
- Adres: Warszawa, Praga-Południe, Mazowieckie,
- Komunikacja: Autobus, Tramwaj, Kolejka podmiejska
- W pobliżu: Sklep, Kościół, Apteka, Bank, Bar, Przychodnia lekarska, Plac zabaw, Restauracja, Las, Basen, Lakiernia, Przedszkole, Bazarek, Szkoła, Szpital, Centrum handlowe, Uczelnia, Gimnazjum, Żłobek, Park
Budynek
- Rodzaj budynku: Budynek apartamentowy
- Rok budowy: 2026
-
Winda:
Tak
Mieszkanie
- Rynek: Pierwotny
- Cena: 750 475 zł
- Powierzchnia: 41.58 m2
- Cena za m2: 18 049 zł
- Liczba pokoi: 2
- Piętro: 0
- Liczba pięter: 5
- Typ mieszkania: Apartament ,Rozkładowe
- Stan prawny: Własność
- Rodzaj nieruchomości: Mieszkanie
- Stan nieruchomości: Stan deweloperski
- Numer oferty: 39565/3685/OMS
Bezpieczeństwo
-
Alarm:
Tak
-
Domofon:
Tak
-
Monitoring:
Tak
-
Ochrona:
Tak
Pokoje i pomieszczenia
- Wysokość pomieszczeń (cm): 2.64
- Liczba pokoi: 2
- Typ kuchni: Aneks
- Liczba łazienek: 1
Garaże i miejsca postojowe
-
Garaż/Miejsca parkingowe:
Tak
- Cena za garaż/Miejsce parkingowe: 40 000 zł
Oferta z możliwością finansowania
Zostaw telefon, oddzwonimy
najszybciej jak to możliwe! Dziękuję, skontaktuję się
najszybciej jak to możliwe!
Podobne oferty nieruchomości
Sprawdź inne ogłoszenia w miejscowości Warszawa



