Home Działki Kamienna Działka na sprzedaż, Kamienna, 9123/3685/OGS

Kamienna, Opolskie,

Działka na sprzedaż
450 000 zł
73.77 zł/m2
Zaproponuj cenę
Galeria Mapa

Desc Opis

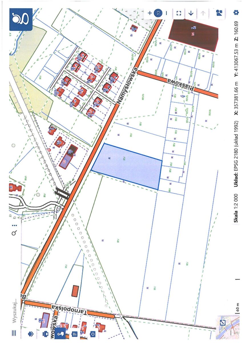
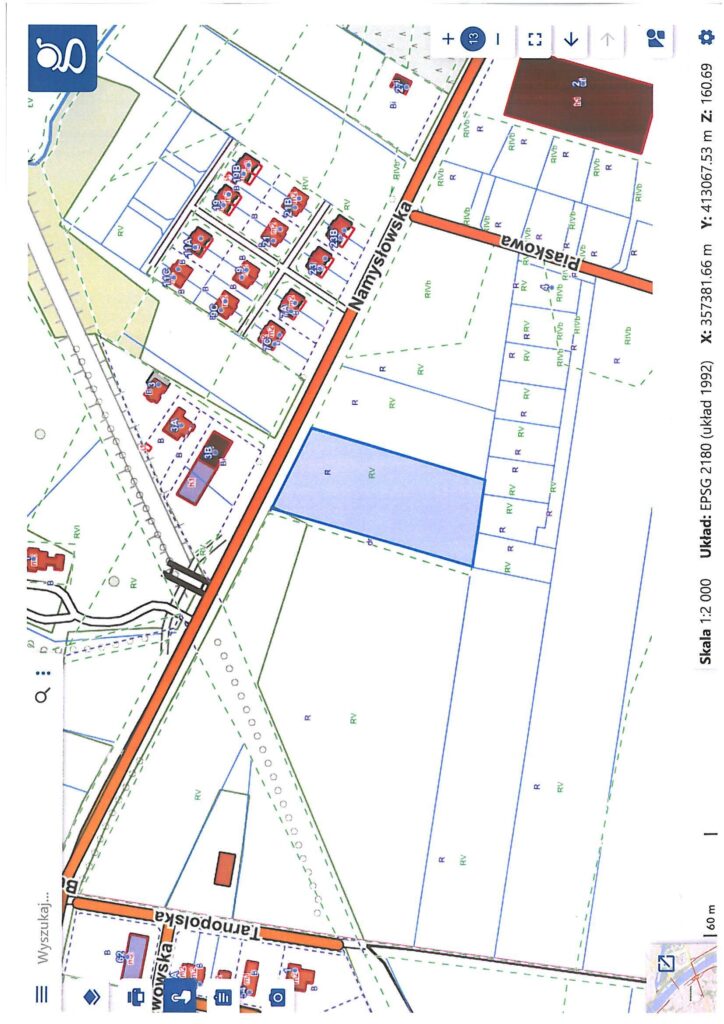
Okazja 0,61 ha pod osiedle domów jednorodzinnych

Działka mieszkaniowo-usługowa o powierzchni 0,6100 ha pod budowę domów jednorodzinnych np. w zabudowie bliźniaczej, szeregowej, wolnostojącej i tym podobne. W bardzo atrakcyjnej lokalizacji, która spowoduje że sukces inwestycyjny z zakupionej działki jest gwarantowany. Działka ta znajduje się w Kamiennej koło Namysłowa przy drodze krajowej nr 39. Działka ta ma dostęp do drogi krajowej 39 po przez drogę gminną.

  • atrakcyjna cena
  • świetna lokalizacja
  • przy drodze krajowej 39
  • dobry dojazd do miasta Namysłów
  • sąsiedztwo innych osiedli

Freedom Nieruchomości ma przyjemność zaprezentować działkę budowlaną/usługową o powierzchni 6100m2, położoną w miejscowości Kamienna  koło Namysłowa 
 media:  gaz i woda przebiega prze działkę. Sąsiedztwo to domki jednorodzinne w zabudowie bliźniaczej , domki wolno stojące oraz duży market budowlany. Działka ta również pasuje pod prowadzenie działalności gospodarczej. Można na niej  stawiać budynki mieszkalne i usługowe do wysokości 9m , budynki garażowe i gospodarcze 6m, minimalna powierzchnia działki 8 arów przy podziale na mniejsze.

Zapraszam na prezentację, aby w pełni docenić potencjał drzemiący w tej nieruchomości oraz najbliższej okolicy.

Opiekun oferty: Irena Woźniak tel: +48 513 134 067e-mail: i.wozniak@freedom.pl

Freedom Nieruchomości to GWARANCJA bezpieczeństwa:
- nieruchomość sprawdzona pod względem formalno-prawnym,
- nadzór licencjonowanego Pośrednika (nr licencji 22489),
- polisa OC Pośrednika  w PZU SA,
- współpraca z kancelarią notarialną

Pokaż cały opis All desc

Desc Pytania kupujących

FAQ dotyczące działki w Kamiennej koło Namysłowa

1. Jaka jest powierzchnia i kształt tej działki?
Działka ma powierzchnię 0,61 ha (6100 m²) i ma prostokątny kształt, co ułatwia planowanie zabudowy.

2. Jakie media są dostępne na działce?
Na działce dostępne są media, takie jak woda i gaz, które przebiegają przez działkę. Prąd również jest dostępny w drodze.

3. Co znajduje się w okolicy działki?
W okolicy znajdziesz inne osiedla domów jednorodzinnych oraz duży market budowlany. Działka jest dobrze skomunikowana, ponieważ znajduje się przy drodze krajowej nr 39, co zapewnia łatwy dojazd do Namysłowa.

4. Jakie są możliwości zabudowy na tej działce?
Działka jest przeznaczona pod zabudowę mieszkaniową i usługową. Można na niej stawiać budynki mieszkalne do wysokości 9 m oraz budynki garażowe i gospodarcze do 6 m. Istnieje również możliwość podziału działki na mniejsze.

5. Kiedy mogę zobaczyć tę działkę?
Chętnie umówimy się na prezentację, abyś mógł w pełni docenić potencjał tej nieruchomości oraz okolicy. Wystarczy skontaktować się z nami, aby ustalić dogodny termin.

Pokaż więcej All desc

Lokalizacja Lokalizacja

  • Adres: Kamienna, Opolskie,
  • Droga dojazdowa: Asfaltowa

Działka

  • Rynek: Wtórny
  • Cena: 450 000 zł
  • Powierzchnia działki: 6100 m2
  • Cena za m2: 74 zł
  • Przeznaczenie: Budowlana
  • Rodzaj nieruchomości: Działka
  • Dostępne od: 2024-11-14
  • Numer oferty: 9123/3685/OGS

Warunki zabudowy

  • Plan miejscowy: Plan zagospodarowania przestrzennego
  • Przeznaczenie działki w planie lub studium: Tereny zabudowy mieszkaniowej
  • Wydane warunki zabudowy: Tak
  • Aktualne pozwolenie na budowę: 1
  • Wysokość zabudowy: 9
  • Możliwość podziału: Tak

Wygląd i kształt gruntu

  • Kształt działki: Prostokąt
  • Ukształtowanie działki: Płaska
  • Ogrodzenie: Brak

Media

  • Ujęcie wody: Miejska w drodze
  • Prąd: W drodze
  • Gaz: W drodze
Irena Woźniak Specjalista ds. Nieruchomości

Zostaw telefon, oddzwonimy

    Potwierdzam, że zapoznałem/am się z Polityki prywatności i klauzulą informacyjną Freedom Nieruchomości sp. z o.o. oraz jej partnerów franczyzowych (współadministratorów)

    Proszę o zaznaczenie zgody.