Home Domy Zalewo Dom na sprzedaż, Zalewo, 200m2, 17219/3685/ODS

Zalewo, Warmińsko-Mazurskie,

Dom na sprzedaż
Galeria Rzut Mapa

Desc Opis

Solidny duży dom w Pówsi k/Zalewa

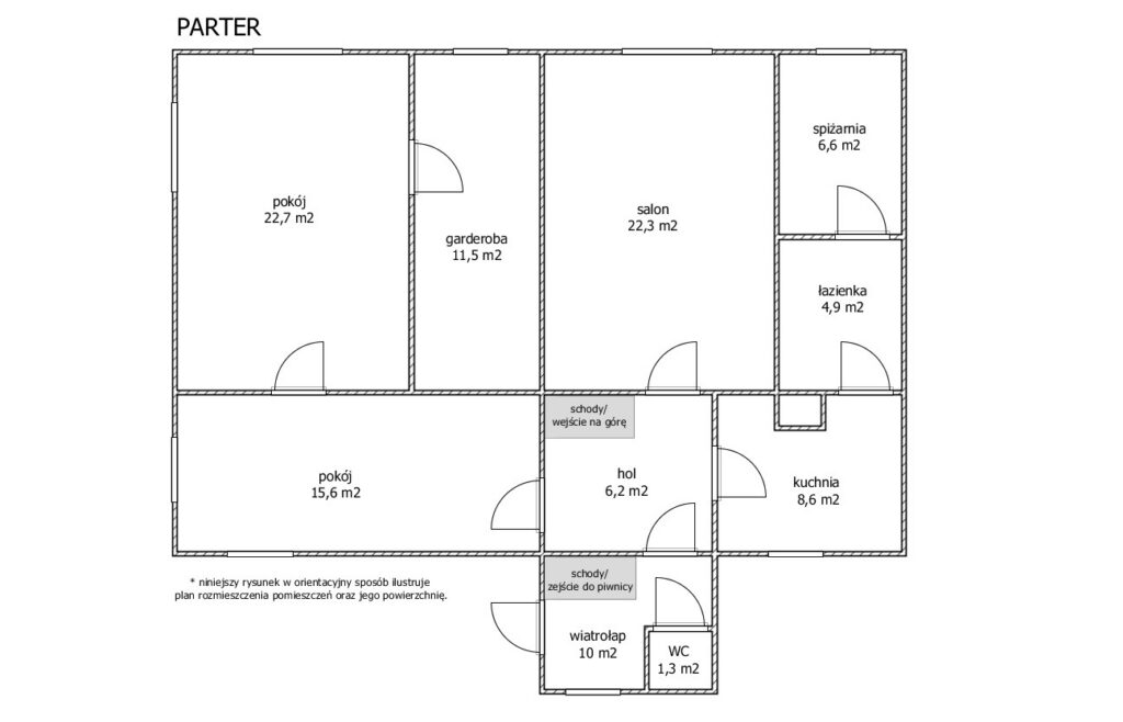
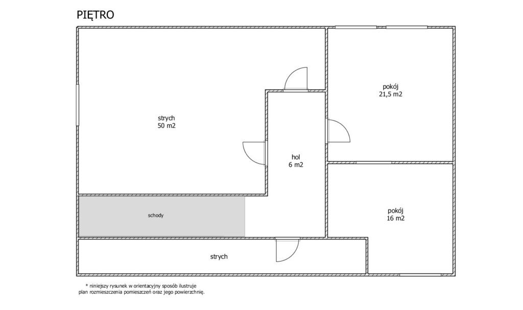
Na sprzedaż dom w zabudowie bliźniaczej w miejscowości Półwieś, 200 m od granicy Zalewo, położony bezpośrednio przy drodze wojewódzkiej (świetny dojazd, również pod działalność). Dom z 1928 r., pow. użytkowa 150 m², całkowita 200 m² (strych ok. 50 m² do adaptacji), podpiwniczony, ocieplony styropianem 10 cm, dach blachodachówka, okna PCV. Wnętrze: 5 pokoi, kuchnia, łazienka, osobne WC, garderoba, ganek. Ogrzewanie CO – piec na węgiel i drewno z 2018 r., woda miejska. Działka 1650 m², ogrodzona siatką z bramą, garaż wolnostojący na 2 samochody, ogród.

  • duży dom
  • garaz na dwa samochody
  • blisko miasta
  • droga asfaltowa
  • 5 pokoi

Na sprzedaż dom w zabudowie bliźniaczej położony w miejscowości Półwieś, zaledwie 200 m od granicy miasta Zalewo. Nieruchomość z 1928 roku o solidnej konstrukcji, o powierzchni użytkowej 150 m² oraz powierzchni całkowitej 200 m², z możliwością adaptacji strychu (ok. 50 m²) na dodatkową przestrzeń mieszkalną. Budynek podpiwniczony, ocieplony styropianem (10 cm), z dachem pokrytym blachodachówką, wyposażony w okna PCV. Dom składa się z 5 pokoi, kuchni, łazienki, oddzielnego WC, garderoby oraz ganku. Ogrzewanie centralne – piec na węgiel i drewno z 2018 roku. Media: woda miejska. Nieruchomość usytuowana jest na działce o powierzchni 1650 m², teren ogrodzony siatką z bramą wjazdową. Na posesji znajduje się wolnostojący garaż na dwa samochody oraz ogród z dużym potencjałem do zagospodarowania. Dom położony bezpośrednio przy drodze wojewódzkiej, co zapewnia bardzo dobry i szybki dojazd do Zalewa oraz okolicznych miejscowości – idealna propozycja zarówno do zamieszkania, jak i pod działalność gospodarczą.

Pokaż cały opis All desc

Desc Pytania kupujących

1. Jak jest urządzony układ pokoi w tym domu?
Dom ma 5 pokoi o różnych powierzchniach: 22 m², 23 m², 15 m², 22 m² i 14 m². Dodatkowo znajduje się kuchnia z wyposażeniem, łazienka oraz osobne WC.

2. W jakim stanie technicznym jest ten dom i czy wymaga remontu?
Dom jest w dobrym stanie technicznym, ocieplony styropianem, z dachem pokrytym blachodachówką. Ogrzewanie centralne zapewnia piec na węgiel i drewno z 2018 roku. Szczegóły dotyczące ewentualnych prac remontowych dostępne po kontakcie.

3. Co zostaje w tym domu po sprzedaży, a co muszę dokupić?
W domu pozostaje wyposażenie kuchni oraz inne elementy, które są częścią nieruchomości. Szczegóły dotyczące wyposażenia dostępne po kontakcie.

4. Jakie sklepy i szkoły są blisko tego domu?
Dom znajduje się w miejscowości Półwieś, zaledwie 200 m od granicy Zalewa, co zapewnia łatwy dostęp do lokalnych sklepów i szkół. W okolicy znajdziesz również tereny zielone.

5. Czy ten dom ma garaż lub miejsce na samochód?
Tak, dom posiada wolnostojący garaż na dwa samochody oraz dodatkowe miejsce parkingowe na posesji.

Pokaż więcej All desc

Lokalizacja Lokalizacja

  • Adres: Zalewo, Warmińsko-Mazurskie,
  • Komunikacja: Autobus
  • Droga dojazdowa: Asfaltowa

Dom

  • Rynek: Wtórny
  • Cena: 449 000 zł
  • Powierzchnia: 200 m2
  • Powierzchnia użytkowa: 150 m2
  • Powierzchnia działki: 1650 m2
  • Liczba pokoi: 5
  • Liczba pięter: 1
  • Stan prawny: Własność
  • Rodzaj nieruchomości: Dom
  • Dostępne od: 2026-06-01
  • Numer oferty: 17219/3685/ODS

Standard domu

  • Typ domu: Bliźniak
  • Liczba pięter: 1
  • Ciepła woda: Paliwa stałe, Bojler
  • Rodzaj ogrzewania: CO własne
  • Rodzaj kanalizacji: Miejska
  • Typ okien: PCV
  • Materiał: Cegła
  • Stan budynku: Dobry
  • Dach: Blachodachówka
  • Drzwi wejściowe: Drewniane
  • Media: Woda, Prąd

Wygląd i kształt gruntu

  • Kształt działki: Prostokąt
  • Ukształtowanie działki: Płaska
  • Ogrodzenie: Siatka

Pokoje i pomieszczenia

  • Liczba pokoi: 5
  • Powierzchnie pokoi: 22, 23, 15, 22, 14
  • Liczba oddzielnych toalet: 1
  • Typ kuchni: Z wyposażeniem
  • Liczba łazienek: 1

Powierzchnie dodatkowe

  • Garaż/Miejsca parkingowe: 1
  • Garaż (liczba miejsc): 2
  • Usytuowanie garażu: Wolnostojący
Dorota Szulc Dyrektor Oddziału

Zostaw telefon, oddzwonimy

    Potwierdzam, że zapoznałem/am się z Polityki prywatności i klauzulą informacyjną Freedom Nieruchomości sp. z o.o. oraz jej partnerów franczyzowych (współadministratorów)

    Proszę o zaznaczenie zgody.