Home Domy Ostaszewo Dom na sprzedaż, Ostaszewo, 200m2, 15772/3685/ODS

Desc Opis

Dom całoroczny nad jeziorem

Dom nad jeziorem Hartowieckim z ogrodem na Mazurach w powiecie Nowomiejskim to wyjątkowa okazja dla tych, którzy poszukują idealnego dla siebie miejsca na ziemi.

  • blisko jezioro
  • blisko las
  • dobry dojazd
  • kominek
  • ogród

Dom położony jest w przy bocznej, cichej uliczce w miejscowości Ostaszewo, gdzie nie ma już wolnych działek, gdyż dookoła jest las co gwarantuje spokój.
Jest to piętrowy dom całoroczny, murowany do połowy również obity deskami, ciepły zimą a chłodny latem, ocieplony wełną, dach ocieplony, pokryty gontem. 
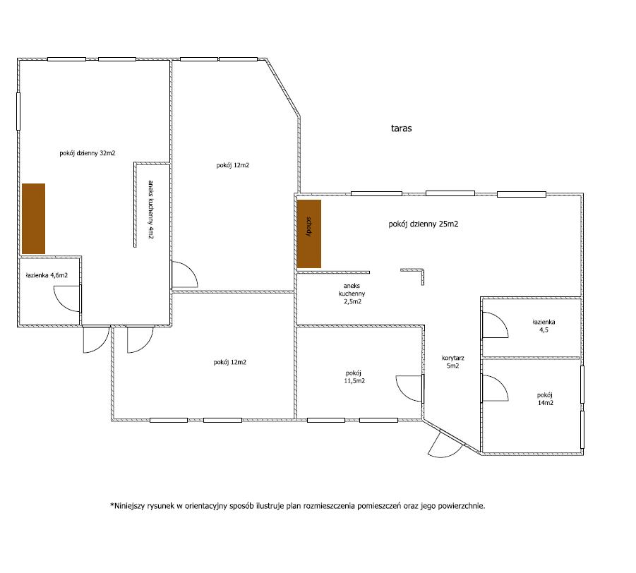
Wnętrze domu oferuje swobodę i komfort użytkowania, gdyż dom ma dwa osobne wejścia. Każda jego część posiada dwie komfortowe sypialnie z widokiem na las, funkcjonalny salon z kominkiem oraz aneksem kuchennym, łazienkę z prysznicem oraz przestronny i jasny pokój na poddaszu. Z każdej części domu jest wyjście na przestronny zadaszony taras oraz pięknie zagospodarowany ogród. Na działce znajduje się również lasek z wiekowymi pięknymi drzewami, naturalnie zagospodarowany oraz miejsce na ognisko.

  • Dom posiada ogrzewanie centralne na olej opałowy oraz dodatkowo kominki w każdej części domu w salonie.
  • Doprowadzona jest woda miejska, kanalizacja - szambo.
  • Działka 500m2, na której posadowiony jest dom.
  • Działka 800m2 częściowo zalesiona.
  • Dom w pełni umeblowany

Ostaszewo to cicha i spokojna osada otoczona lasami i jeziorami. W promieniu 20 kilometrów kilkanaście mniejszych i większych jezior, Parków Krajobrazowych, stok narciarski w Kurzętniku  oraz w Lubstynku. Okoliczne lasy obfitują w grzyby, a jeziora w liczne gatunki ryb (okonie, leszcze, sandacze, szczupaki, węgorze, liny). Przez lasy wytyczone są szlaki rowerowe i piesze. W najbliższej okolicy jest również kilka restauracji, strzeżone plaże oraz miejsca całkowicie dzikie. 
Najbliższe miasto to Lubawa ok 15 km, Iława ok 30 km, Gdańsk ok 150 km.

Zainteresowanych zapraszam do kontaktu

Szczegóły oferty: FREEDOM Iława, ul. Kopernika 5, Katarzyna Jakubowska, tel.  572135403

* Do ceny transakcyjnej należy doliczyć koszty okołotransakcyjne.

Pokaż cały opis All desc

Desc Pytania kupujących

1. Jak jest urządzony układ pokoi w tym domu?
Dom ma dwa osobne wejścia, a każda część składa się z dwóch komfortowych sypialni z widokiem na las, funkcjonalnego salonu z kominkiem oraz aneksem kuchennym. Dodatkowo znajduje się łazienka z prysznicem oraz przestronny pokój na poddaszu.

2. W jakim stanie technicznym jest ten dom i czy wymaga remontu?
Dom jest w bardzo dobrym stanie technicznym, ocieplony wełną, z dachem pokrytym gontem. Jest gotowy do zamieszkania, a jego wnętrze oferuje komfort użytkowania.

3. Co zostaje w tym domu po sprzedaży, a co muszę dokupić?
Dom jest w pełni umeblowany, więc większość mebli i wyposażenia pozostaje. Szczegóły dotyczące ewentualnych dodatkowych zakupów dostępne są po kontakcie.

4. Jakie sklepy i szkoły są blisko tego domu?
W najbliższej okolicy znajdują się sklepy, restauracje oraz tereny rekreacyjne, takie jak jeziora i lasy. Ostaszewo to cicha osada, idealna dla osób szukających spokoju i bliskości natury.

5. Czy ten dom ma garaż lub miejsce na samochód?
Tak, na działce znajduje się miejsce parkingowe, co zapewnia wygodę dla mieszkańców.

Pokaż więcej All desc

Lokalizacja Lokalizacja

  • Adres: Ostaszewo, Warmińsko-Mazurskie,
  • W pobliżu: Rzeka, Sklep, Jezioro, Las, Restauracja
  • Droga dojazdowa: Utwardzona

Dom

  • Rynek: Wtórny
  • Cena: 699 000 zł
  • Powierzchnia: 200 m2
  • Powierzchnia użytkowa: 167 m2
  • Powierzchnia działki: 1300 m2
  • Cena za m2: 3 495 zł
  • Liczba pokoi: 6
  • Liczba pięter: 1
  • Rodzaj nieruchomości: Dom
  • Dostępne od: 2025-07-01
  • Numer oferty: 15772/3685/ODS

Standard domu

  • Typ domu: Wolnostojący
  • Liczba pięter: 1
  • Ciepła woda: Inne
  • Rodzaj ogrzewania: Olejowe
  • Rodzaj kanalizacji: Szambo
  • Typ okien: Drewniane (nowy typ)
  • Materiał: Pustak
  • Stan budynku: Bardzo dobry
  • Dach: Inne
  • Drzwi wejściowe: Drewniane
  • Udogodnienia: Kominek
  • Media: Woda, Prąd

Wygląd i kształt gruntu

  • Kształt działki: Prostokąt
  • Ukształtowanie działki: Zróżnicowana
  • Ogrodzenie: Częściowe

Pokoje i pomieszczenia

  • Liczba pokoi: 6
  • Powierzchnie pokoi: 32,12,12,25,14,11
  • Podłogi w pomieszczeniach: Panele, Deska podłogowa, Płytki
  • Typ kuchni: Aneks
  • Liczba łazienek: 2

Powierzchnie dodatkowe

  • Garaż/Miejsca parkingowe: 1
Katarzyna Jakubowska Agent Nieruchomości

Zostaw telefon, oddzwonimy

    Potwierdzam, że zapoznałem/am się z Polityki prywatności i klauzulą informacyjną Freedom Nieruchomości sp. z o.o. oraz jej partnerów franczyzowych (współadministratorów)

    Proszę o zaznaczenie zgody.