Morąg, Warmińsko-Mazurskie, ul. Wrzosowa
Dom na sprzedaż
Opis
Dom 120m2 z dużą działką, ogrodem i garażem.
Na sprzedaż wyjątkowa nieruchomość położona w spokojnej i malowniczej części Morąga przy ul. Wrzosowej. W pobliżu rozciąga się urokliwe rozlewisko Morąskie. To idealna propozycja dla osób szukających komfortu, przestrzeni, kontaktu z naturą, a jednocześnie chcących zamieszkać w granicach miasta. To wyjątkowe położenie łączy komfort życia blisko miasta z pięknem przyrody. Dom znajduje się na ogrodzonej działce z automatycznie otwieraną bramą wjazdową.
- doskonała lokalizacja
- duża działka 949m2
- wolnostojący garaż na posesji
- dodatkowa przestrzeń w bryle budynku pod działalność gospodarczą
- możliwość ogrzewania trzema źródłami ciepła
- dostęp do mediów miejskich
- centralny system odkurzania
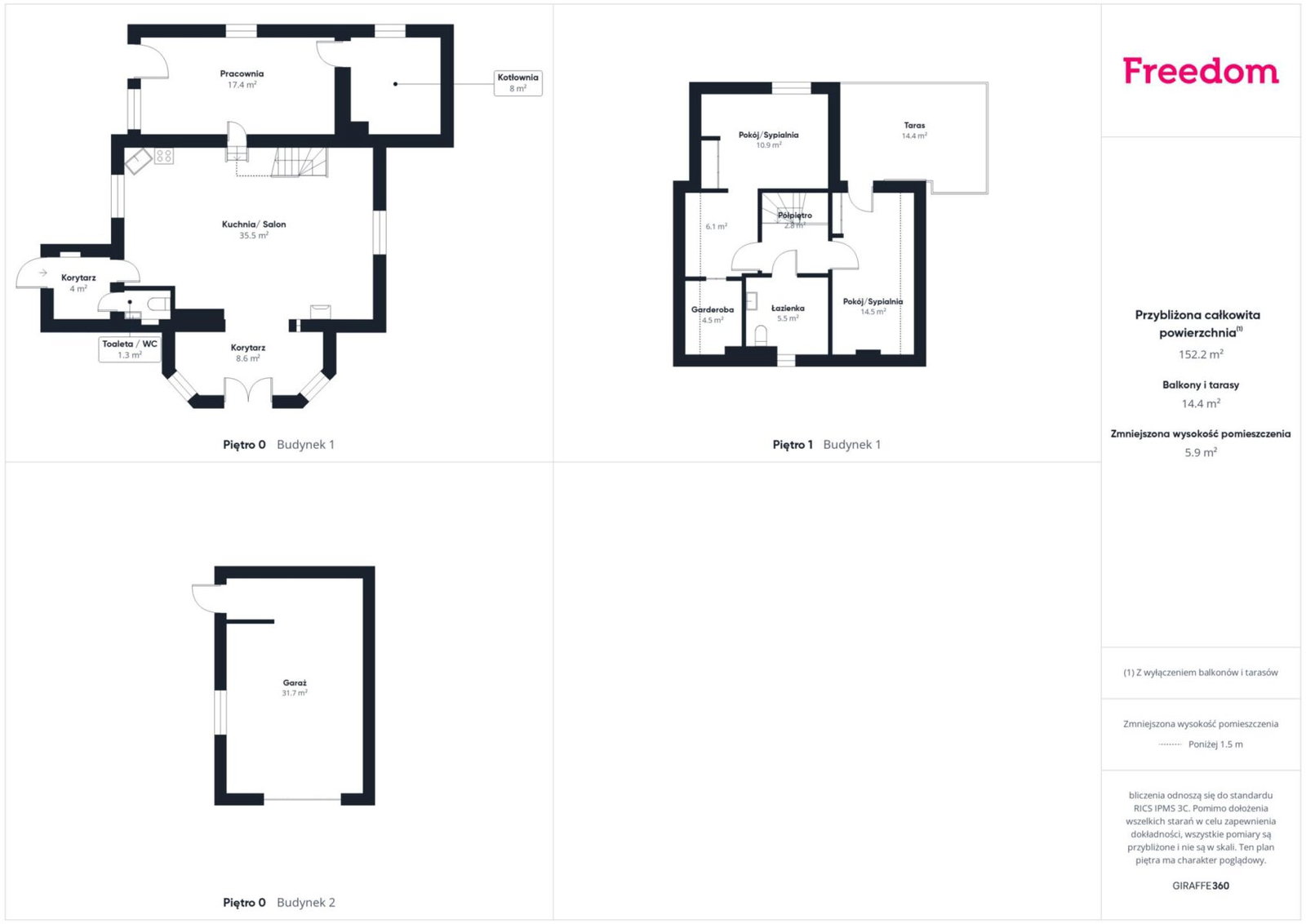
Dom o powierzchni 120m2 składa się z dwóch kondygnacji. Na parterze znajduje się przestronna strefa dzienna z salonem, łazienką, aneksem kuchennym i kominkiem typu koza. Na piętrze znajduje się prywatna strefa domowników z sypialniami, garderobą oraz wyjściem na duży balkon. Dodatkowym atutem jest zaadaptowane pomieszczenie po dawnym garażu które obecnie pełni funkcję dodatkowego pokoju z osobnym wejściem. To idealna przestrzeń do prowadzenia małego biura, pracowni, pracy zdalnej lub własnego hobby roomu.
Na posesji znajduję się również wolnostojący garaż, wraz z wiatą. Zapewnia on zadaszone miejsce postojowe dla trzech samochodów. Może on także służyć do przechowywania sprzętu lub majsterkowania. Budynek garażu posiada również strych który doskonale sprawdzi się jako dodatkowa przestrzeń magazynowa.
Dom jest posadowiony na dużej działce o powierzchni 949m2 która daje ogromne możliwości rekreacyjne. Przestrzeń ogrodowa jest funkcjonalnie zagospodarowana i podzielona na dwie kategorie. Strefa relaksu z zadbaną zielenią, oczkiem wodnym, miejscem na wypoczynek i rodzinne grillowanie. Strefa warzywna z przygotowanym gruntem do uprawy własnych warzyw, ziół i kwiatów. Cały teren jest ogrodzony i otoczony licznymi nasadzeniami. Na działce rosną drzewa owocowe: czereśnie, wiśnie, śliwy, grusze, jabłonie, brzoskwinie oraz morwy. Jest to prawdziwa gratka dla smakoszy naturalnych owoców prosto z własnego sadu. Idealna propozycja dla rodzin z dziećmi, miłośników ogrodnictwa czy osób marzących o własnym warzywniaku lub sadzie.
Dom wyposażony jest w trzy niezależne źródła ciepła, co daje pełną kontrolę nad kosztami i dopasowanie do indywidualnych preferencji. Piec gazowy to wygodne, nowoczesne rozwiązanie do codziennego ogrzewania całego budynku. Piec typu ,,koza" zlokalizowany w salonie, zapewnia przyjemne ciepło i klimatyczną atmosferę w chłodniejsze dni. Piec tradycyjny który może być wykorzystywany w sytuacjach awaryjnych lub jako sposób dogrzewania dla dodatkowych oszczędności.
Dom posiada również system centralnego odkurzania. W ścianach domu zainstalowane są gniazda ssące, do których wystarczy podłączyć rurę odkurzacza. Jednostka centralna, silnik i zasobnik znajdują się w kotłowni co zapewnia cichą prace i lepszą jakość powietrza w odkurzanym pomieszczeniu.
Nieruchomość jest w pełni uzbrojona. Doprowadzone zostały wszystkie niezbędne media z sieci miejskiej: energia elektryczna, woda, gaz oraz kanalizacja, co zapewnia wygodę i bezproblemowe użytkowanie.
Taki dom z ogrodem, garażem, dodatkowymi udogodnieniami i świetną lokalizacją to rzadkość na rynku. Zobacz nieruchomość na żywo i przekonaj się, czy to miejsce dla Ciebie. Zapraszam na dni otwarte w piątek 18.07.2025 w godzinach od 16.00 do 20.00. Wystarczy umówić godzinę - zadzwoń lub napisz.
Pozdrawiam
Radosław Czapiewski
Przy zakupie nieruchomości należy uwzględnić koszty notarialne oraz wynagrodzenie biura nieruchomości w wysokości 2,5% brutto.
Serdecznie zapraszam również do rozmowy przy aromatycznej kawie w naszym biurze w Elblągu, przy al. Grunwaldzkiej 31/2 – chętnie odpowiem na wszystkie pytania i przedstawię szczegóły oferty.
Chcesz kupić wymarzoną nieruchomość, ale nie masz oszczędności na wkład?
Mamy dla Ciebie rozwiązanie!
Nasi eksperci finansowi pomogą Tobie w uzyskaniu kredytu hipotecznego na zakup nieruchomości BEZ WYMAGANEGO WKŁADU WŁASNEGO!
Nie czekaj, zgłoś się do nas – wymarzona nieruchomość jest w Twoim zasięgu
Pytania kupujących
FAQ dotyczące oferty domu w Morągu
1. Jak jest urządzony układ pokoi w tym domu?
Dom o powierzchni 120 m² składa się z dwóch kondygnacji. Na parterze znajduje się przestronny salon z aneksem kuchennym, łazienka oraz kominek typu koza. Na piętrze zlokalizowane są sypialnie, garderoba oraz wyjście na duży balkon. Dodatkowo, w bryle budynku znajduje się zaadaptowane pomieszczenie po dawnym garażu, które może pełnić funkcję biura lub hobby roomu.
2. W jakim stanie technicznym jest ten dom i czy wymaga remontu?
Dom jest w dobrym stanie technicznym i nie wymaga remontu. Posiada nowoczesne rozwiązania, takie jak system centralnego odkurzania oraz trzy niezależne źródła ciepła, co zapewnia komfort użytkowania.
3. Co zostaje w tym domu po sprzedaży, a co muszę dokupić?
W ofercie zawarte są wszystkie stałe elementy wyposażenia, takie jak kominek, system centralnego odkurzania oraz media miejskie. Szczegóły dotyczące dodatkowego wyposażenia dostępne są po kontakcie.
4. Jakie sklepy i szkoły są blisko tego domu?
W pobliżu znajdują się różne udogodnienia, takie jak szkoły, przedszkola, sklepy, restauracje oraz centrum handlowe. Dodatkowo, w okolicy można znaleźć tereny zielone oraz jezioro, co sprzyja aktywnemu wypoczynkowi.
5. Kiedy mogę wprowadzić się do tego domu i czy jest już wolny?
Dom będzie dostępny od 2 czerwca 2025 roku. Chętnie umówimy się na wizytę, abyś mógł zobaczyć nieruchomość na żywo. Wystarczy zadzwonić lub napisać, aby ustalić dogodny termin.
Jeśli masz dodatkowe pytania lub chcesz umówić się na wizytę, serdecznie zapraszam do kontaktu!
Pokaż więcej
Lokalizacja
- Adres: Morąg, Warmińsko-Mazurskie, ul. Wrzosowa
- Komunikacja: Autobus, Kolej, Bus, PKS
- W pobliżu: Jezioro, Centrum handlowe, Szkoła, Kościół, Bank, Basen, Zabudowa niska, Restauracja, Sklep, Szpital, Przedszkole, Apteka, Przychodnia lekarska, Fitness, Kort tenisowy
- Droga dojazdowa: Utwardzona
Dom
- Rynek: Wtórny
- Cena: 739 000 zł
- Powierzchnia: 120 m2
- Powierzchnia użytkowa: 110 m2
- Powierzchnia działki: 949 m2
- Cena za m2: 6 158 zł
- Liczba pokoi: 5
- Liczba pięter: 1
- Stan prawny: Własność
- Rodzaj nieruchomości: Dom
- Dostępne od: 2025-06-02
- Numer oferty: 15762/3685/ODS
- Zobacz spacer 360°: Zobacz
Standard domu
- Typ domu: Wolnostojący
- Liczba pięter: 1
- Rodzaj ogrzewania: Kominkowe, Węglowe, Gazowe
- Rodzaj kanalizacji: Miejska
- Typ okien: Drewniane (nowy typ)
- Materiał: Pustak
- Stan budynku: Dobry
- Dach: Blachodachówka
- Drzwi wejściowe: Przeciwwłamaniowe
- Udogodnienia: Kominek, Internet
- Media: Woda, Prąd
Wygląd i kształt gruntu
- Kształt działki: Nieregularny
- Ukształtowanie działki: Płaska
- Ogrodzenie: Metalowe
Pokoje i pomieszczenia
- Liczba pokoi: 5
- Liczba oddzielnych toalet: 2
- Podłogi w pomieszczeniach: Panele, Płytki
- Typ kuchni: Otwarta
- Liczba łazienek: 2
Powierzchnie dodatkowe
- Garaż/Miejsca parkingowe: 1
- Garaż (liczba miejsc): 3
- Usytuowanie garażu: Wolnostojący
- Powierzchnia ogrodu: 870 m2
- Powierzchnie tarasów: 14 m2
Oferta z możliwością finansowania
Zostaw telefon, oddzwonimy
najszybciej jak to możliwe! Dziękuję, skontaktuję się
najszybciej jak to możliwe!
Podobne oferty nieruchomości
Sprawdź inne ogłoszenia w miejscowości Morąg



